• Nuestras-Creaciones
  • Estudio
  • Magazine
  • Contacto

Proyecto Obra Nueva

LOS SATÉLITES MAJADAHONDA

Descubre nuestra promociones
m2 de Parcela
+ 0
m2 de Superficie Útil
+ 0
Habitaciones
0
Baños
0

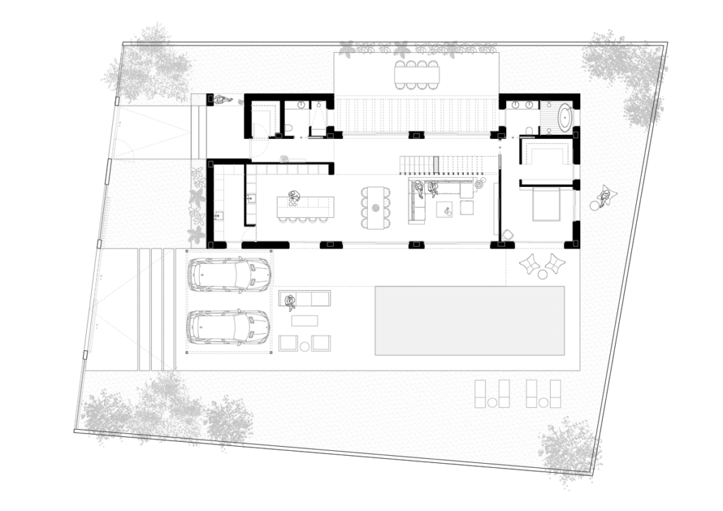
PLANTA BAJA  

TOTAL SUP. CONSTRUIDA PLANTA BAJA 165.82 m²

Desde el luminoso salón hasta la moderna cocina ha sido pensada para aportarte comodidad y estilo en cada momento. La impresionante suite principal se convierte en tu oasis de tranquilidad, y su amplio vestidor añade un toque de elegancia a tu día a día.

Pero la experiencia no termina en el interior: al salir, te esperan un acogedor porche y un espacioso jardín trasero donde podrás disfrutar de momentos de serenidad y compartir gratos momentos con tus seres queridos. Dos plazas de aparcamiento cubiertas y una refrescante piscina completan este entorno exterior diseñado para tu comodidad y entretenimiento.

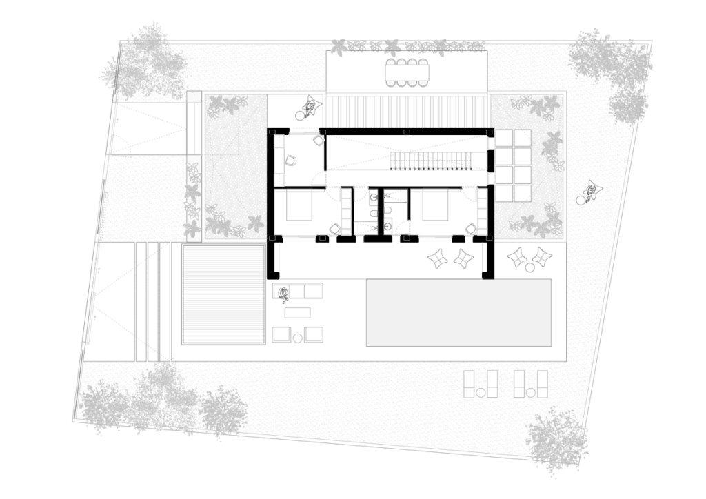
PLANTA PRIMERA  

TOTAL SUP. CONSTRUIDA PLANTA PRIMERA 79.01 m²

Con un despacho propio y dos amplias terrazas, encontrarás comodidad y bienestar en cada rincón. La habitación con baño en suite se convierte en tu refugio privado, con armarios empotrados que mantienen todo en orden.

Además, una habitación de invitados y un baño individual ofrecen comodidad adicional. Pero la experiencia no se limita al interior: un balcón conecta todas las estancias de dormitorio, proporcionando un espacio al aire libre para disfrutar de vistas y momentos de relajación.

VIVIENDA EXCLUSIVA EN LOS SATÉLITES  

En Atmosphere Arquitectos, nos especializamos en la venta de viviendas unifamiliares en urbanizaciones exclusivas de Madrid. Nuestro objetivo es ayudarte a encontrar la casa de tus sueños proporcionando un servicio personalizado y de alta calidad, garantizando una experiencia única y satisfactoria para cada cliente.

LUJO EN CADA DETALLE  

Equilibrio perfecto entre elegancia, lujo y tranquilidad distribuído en 5 habitaciones amplias y luminosas, 3 baños, una cocina abierta, lavandería y numerosos espacios interiores que se fusionan con las zonas exteriores, creando un entorno ideal para relajarte y desconectar, gracias a sus más de 500m2 de superficie útil y 750m2 de parcela, convirtiendo el precioso jardín en un oasis personal gracias a la piscina privada.

A partir de su diseño arquitectónico sofisticado y contemporáneo, esta propiedad te ofrece un espacio elegante y funcional. Cada detalle ha sido cuidadosamente seleccionado, desde los acabados de alta calidad hasta las características modernas, para una experiencia de vida excepcional.

Solicita más información sin compromiso

Contactar

ACERCA DE LA PROPIEDAD  

Experimentarás el lujo de seis habitaciones amplias y llenas de luz, acompañadas de cuatro baños totalmente equipados. Además, encontrarás una cocina de diseño abierto, una práctica lavandería y una profusión de espacios interiores que se integran armoniosamente con las zonas exteriores. Todo esto se combina para crear un entorno idóneo donde podrás relajarte y desconectar por completo, aprovechando la generosa extensión de más de 750 metros cuadrados de esta excepcional parcela.

TU COMODIDAD NOS IMPORTA  

En Atmosphere Arquitectos, nos enorgullece ofrecerte una experiencia de vida excepcional. Nuestra vivienda cuenta con una amplia gama de comodidades y servicios diseñados para mejorar tu calidad de vida. Además de las amplias habitaciones y espacios interiores, comprendemos la importancia de un alojamiento que se ajuste a tus necesidades diarias.

Por ello, te ofrecemos la conveniencia de un garaje con capacidad de un jardín con piscina te invita a disfrutar de momentos de esparcimiento y descanso, creando un ambiente idóneo para relajarte y disfrutar de tus momentos libres. Te invitamos a experimentar el equilibrio perfecto entre confort y elegancia que ofrece nuestra excepcional propiedad.

GALERÍA DEL PROYECTO
 

LA UBICACIÓN PERFECTA
 

Disfruta de áreas verdes exuberantes, parques infantiles, canchas deportivas y espacios recreativos para que tú y tu familia puedan disfrutar al máximo de cada momento. Además, nuestra ubicación privilegiada te brinda acceso a centros comerciales, restaurantes de renombre, escuelas de calidad y transporte conveniente, todo dentro de un entorno seguro y tranquilo.

DESCUBRE NUESTRA CARTERA EXCLUSIVA DE PROPIEDADES INMOBILIARIAS

Nuestra experiencia en el mercado inmobiliario nos ha permitido reunir una cartera diversa de propiedades para satisfacer las necesidades de cada cliente. Ya sea que estés buscando un hogar acogedor para tu familia o un espacio elegante para disfrutar de tu retiro, tenemos la vivienda perfecta para ti.

Contacta con nosotros ahora

Suscríbete a nuestra newsletter

Ecos de Bramanti

Nosotros

Nuestras Creaciones

Estudio

Blog

Preguntas Frecuentes

Política de Privacidad

Términos y Condiciones

Contacto

info@bramantiarquitectos.com

+34 645 847 835

Calle Alcalá 229

Madrid 28028

Bramanti Arquitectos 2026 - Derechos reservados