• Nuestras-Creaciones
  • Estudio
  • Magazine
  • Contacto

Venta Vivienda Unifamiliar

PROYECTO OMEGA

Quiero conocer todos los detalles acerca del proyecto
m2 de parcela
+ 0
m2 superficie útil
+ 0
baños
0
habitaciones
0

PROYECTO OMEGA

Equilibrio perfecto entre lujo y confort.

Proyecto de vivienda unifamiliar ubicada en la exclusiva urbanización Los Satélites, Majadahonda, Madrid.

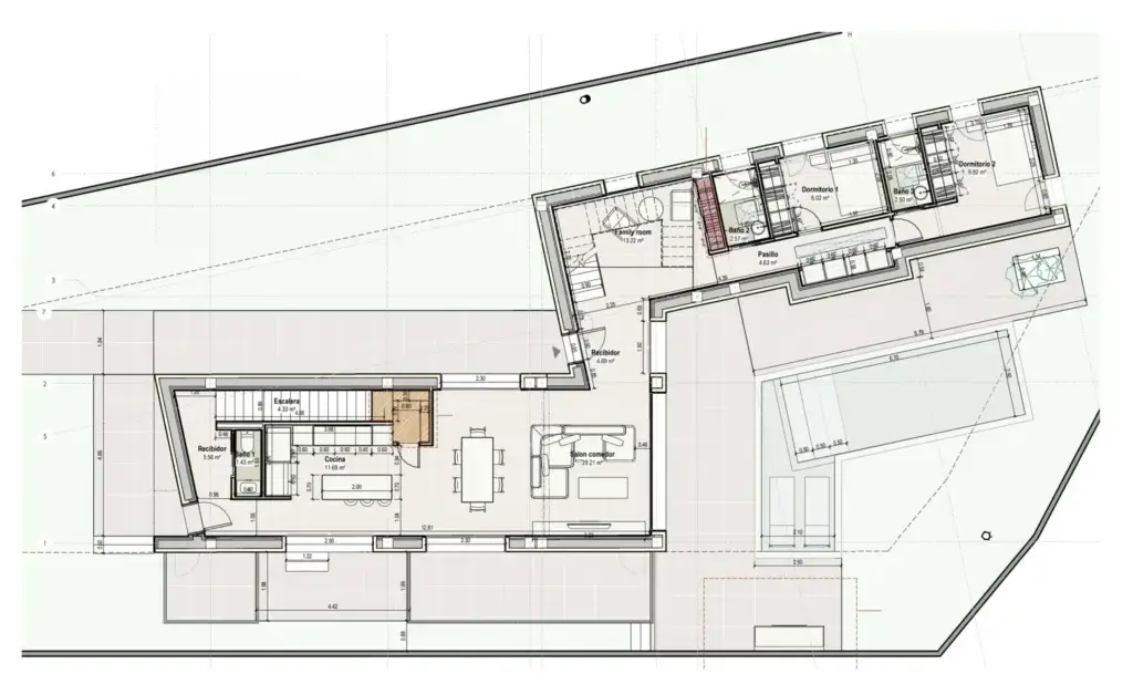
PLANIMETRÍA PLANTA BAJA

Elegancia funcional en su máxima expresión.

Bienestar, elegancia y un toque de sofisticación. Desde la generosa cocina con área de salón – comedor integrada hasta los 2 acogedores dormitorios y los 3 baños, siendo uno de ellos en suite, este espacio es un reflejo de comodidad y estilo. Además, el family room añade un toque de calidez y versatilidad. Pero eso no es todo: la piscina y la extensa zona de aparcamiento de más de 80m2 agregan un toque de lujo y conveniencia a esta generosa de propiedad.

PLANIMETRÍA PRIMERA PLANTA

Privacidad y diseño de primera categoría.

En la planta superior, el dormitorio principal se erige como el punto focal, ofreciendo un amplio vestidor y un baño en suite. Lo más destacado es su acceso directo a las dos terrazas exteriores, creando un ambiente exclusivo donde puedes relajarte y disfrutar de la serenidad del entorno en cualquier momento del día.

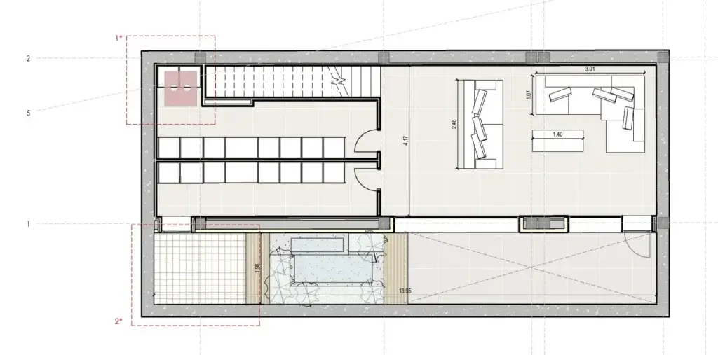
PLANIMETRÍA DEL SÓTANO

Encanto y serenidad

Con más de 100m2 repartidos entre el salón principal, una funcional lavandería y una terraza que invita al relax, el verdadero tesoro de este proyecto es, sin duda, el espectacular patio inglés. Aquí, la belleza de la naturaleza se entrelaza armoniosamente con la elegancia minimalista japonesa, creando un espacio único donde la serenidad y el estilo se fusionan en perfecta armonía.

PLANIMETRÍA DE LA CUBIERTA

Vive Momentos Inolvidables al Aire Libre

Con más de 120m2 disponibles, las dos terrazas y los amplios espacios exteriores son el escenario perfecto para tus momentos de relax y entretenimiento al aire libre. Ya sea disfrutando de una tarde soleada con amigos o relajándote en privado bajo el cielo estrellado, aquí encontrarás el espacio perfecto para disfrutar de la belleza natural que te rodea. Con vistas panorámicas y un ambiente sereno, estas terrazas son el lugar ideal para crear recuerdos inolvidables y vivir la vida al máximo.

Descubre tu oasis de exclusividad

Sumérgete en un estilo de vida único, donde la elegancia y la comodidad se fusionan en cada rincón de esta impresionante vivienda unifamiliar. Diseñada para elevar tus sentidos y satisfacer tus más altas expectativas, nuestra creación arquitectónica redefine el concepto de hogar.

ACERCA DE LA PROPIEDAD  

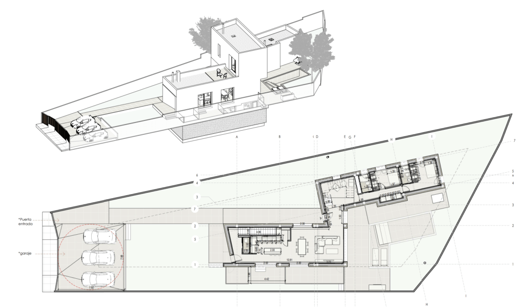
Con una generosa parcela de más de 727m2 y una superficie útil de 520m2, te espera un mundo de posibilidades para disfrutar al máximo del espacio exterior. Desde las dos amplias terrazas hasta los espacios exteriores, aquí encontrarás el escenario perfecto para crear recuerdos inolvidables bajo el sol o las estrellas. Además, con tres baños y cinco habitaciones, cada rincón ha sido diseñado pensando en tu comodidad y bienestar. Descubre la vida al aire libre en su máxima expresión en esta magnífica propiedad.

TU TRANQUILIDAD NOS IMPORTA  

La urbanización Los Satélites es un oasis de tranquilidad y seguridad por lo siguientes motivos:

  • Vigilancia 24 horas, control de acceso y circuito cerrado de televisión para tu tranquilidad y la de tu familia.
  • Entorno natural privilegiado con amplias zonas verdes, parques infantiles y pistas deportivas.
  • Excelentes comunicaciones: A poca distancia de Madrid, con acceso directo a la A-6 y transporte público.

Galería del Proyecto
 

LA UBICACIÓN PERFECTA
 

Disfruta de áreas verdes exuberantes, parques infantiles, canchas deportivas y espacios recreativos para que tú y tu familia puedan disfrutar al máximo de cada momento. Además, nuestra ubicación privilegiada te ofrece acceso a centros comerciales, restaurantes de renombre, escuelas de calidad y transporte conveniente, todo dentro de un entorno seguro y tranquilo.

Eleva tu estilo de vida a otro nivel en esta excepcional vivienda unifamiliar ubicada en la codiciada urbanización Los Satélites de Majadahonda, Madrid.

¡Contáctanos y descubre tu nuevo hogar en Madrid!

ÚLTIMA PROMOCIÓN DISPONIBLE
POR 1.650.000€

Nuestra experiencia en el mercado inmobiliario nos ha permitido reunir una cartera diversa de propiedades para satisfacer las necesidades de cada cliente. Ya sea que estés buscando un hogar acogedor para tu familia o un espacio elegante para disfrutar de tu retiro, tenemos la vivienda perfecta para ti.

Contacta con nuestro equipo de arquitectos ahora

Suscríbete a nuestra newsletter

Ecos de Bramanti

Nosotros

Nuestras Creaciones

Estudio

Blog

Preguntas Frecuentes

Política de Privacidad

Términos y Condiciones

Contacto

info@bramantiarquitectos.com

+34 645 847 835

Calle Alcalá 229

Madrid 28028

Bramanti Arquitectos 2026 - Derechos reservados